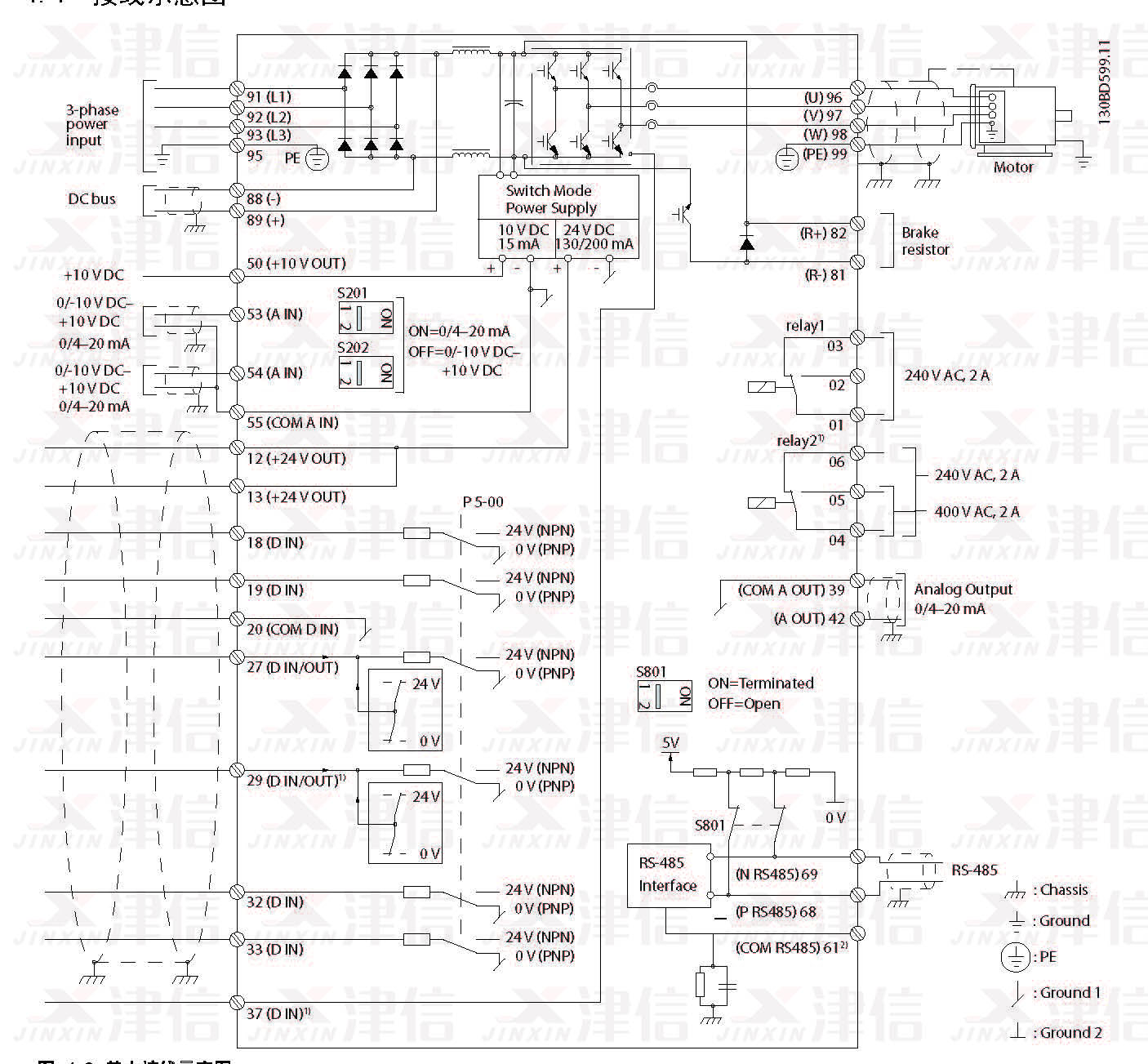
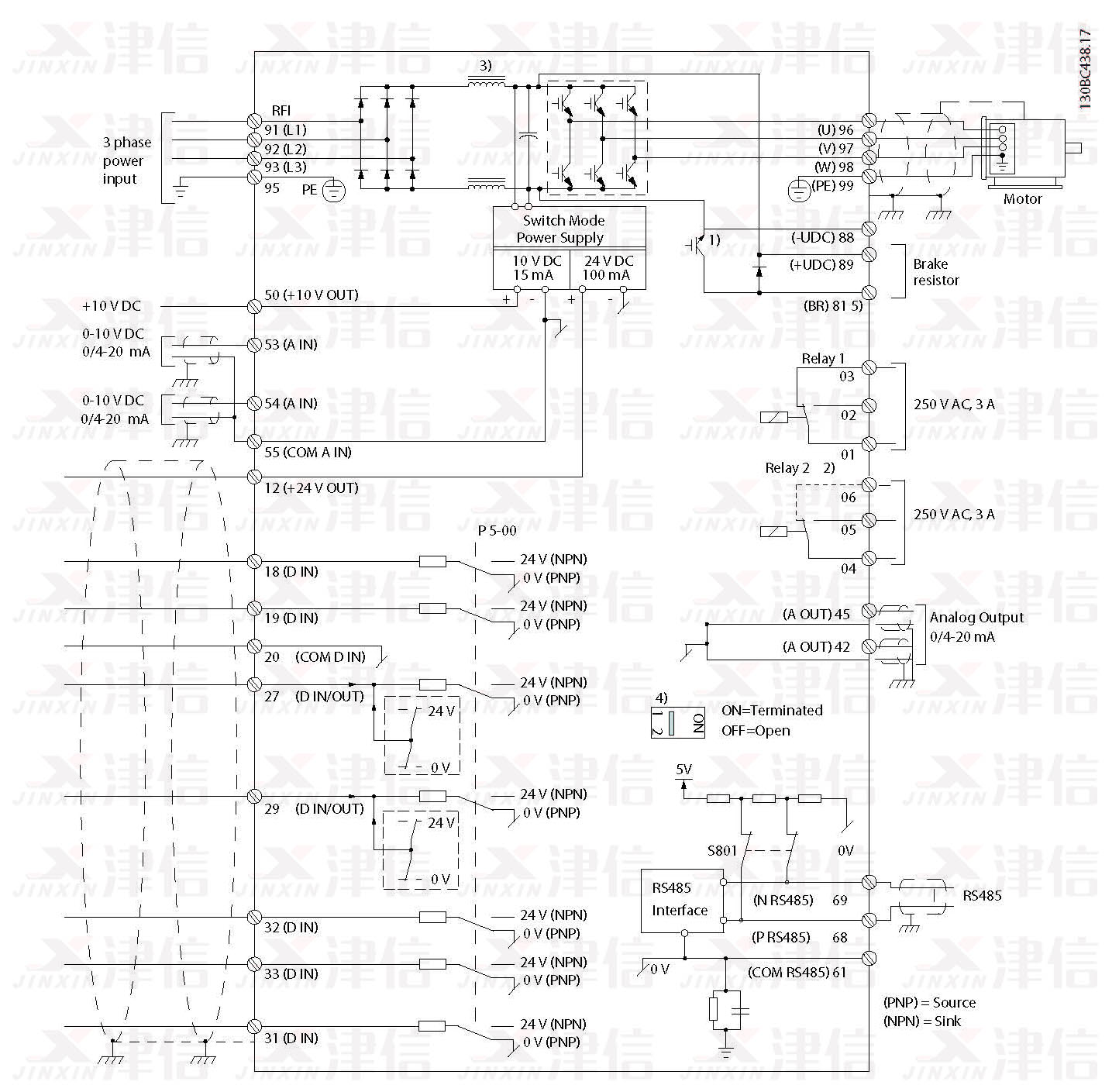
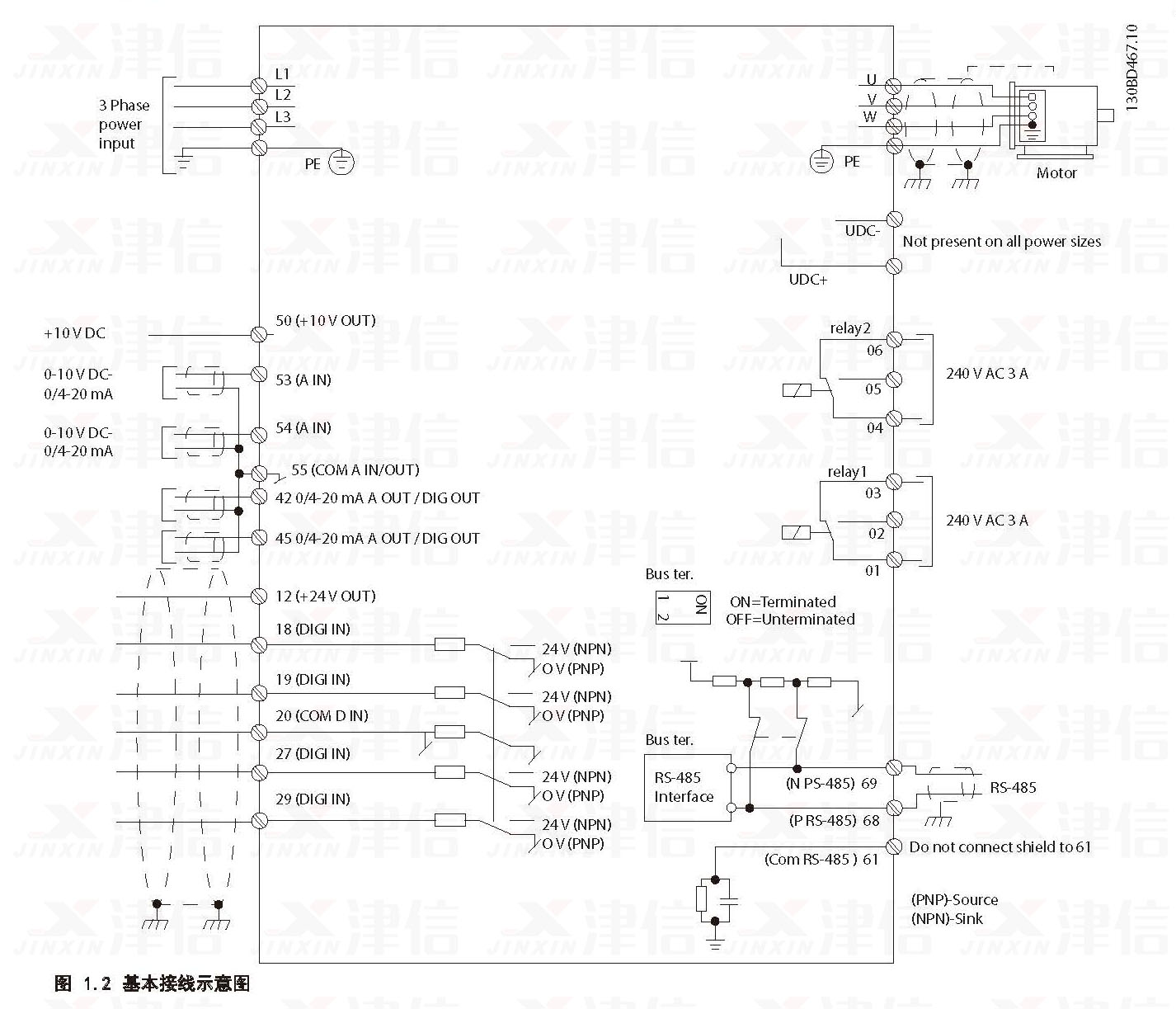
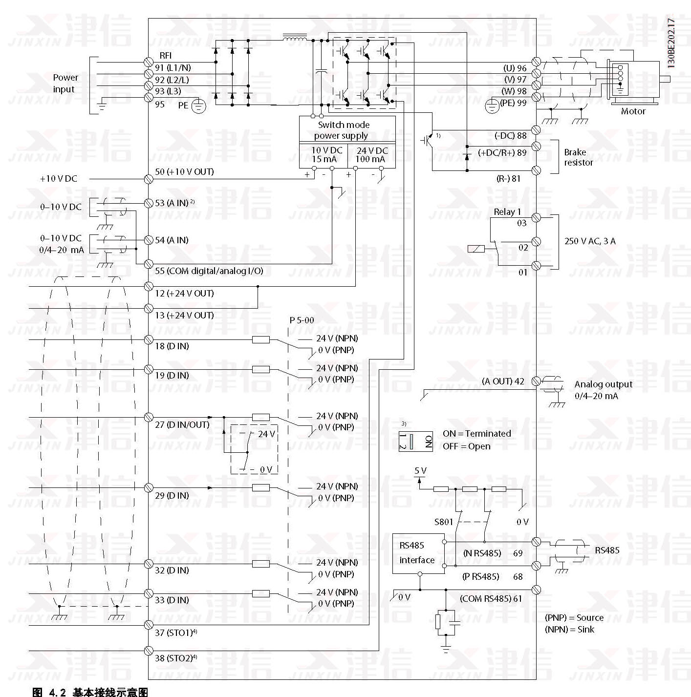
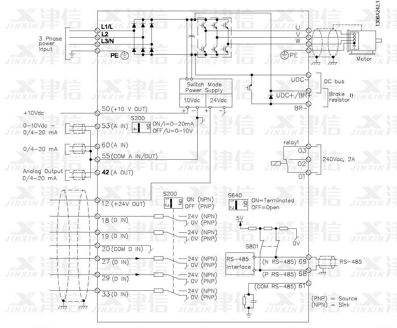
丹佛斯變頻器主要由整流(交流變直流)、濾波、逆變(直流變交流)、制動單元、驅動單元、檢測單元微處理單元等組成。并依靠內部IGBT的開斷來調整輸出電源的電壓和頻率,從而達到節能、調速的目的。
丹佛斯變頻器采用交-直-交工作原理,先將三相交流電經整流部分變換成直流,經濾波后通過IGBT或其它電力電子器件逆變成頻率和電壓均可變的三相交流電供電機使用。變頻器的基本構成由主電路(包括整流器、中間直流環節、逆變器)和控制電路組成,以下是丹佛斯各系列變頻器的接線示意圖。
-
制動(BR+ 和 BR-)不適用于機箱規格 M1。

A=模擬,D=數字
-
端子 37(可選)用于 Safe Torque Off (STO) 功能。
-
對于 FC 301,只有 A1 型機箱中包括端子 37。繼電器 2 和端子 29 在 FC 301 中不起作用。
2) 請勿連接電纜屏蔽層。

A=模擬,D=數字
1) J1–J5 上配有內置制動斬波器。
2) 對于 J1-J3,繼電器 2 為兩觸點極;對于 J4-J7,繼電器2 為 3 觸點。J4-J7 的 繼電器2 上的端子 4、5、6 的常開/常閉邏輯與繼電器1 相同。繼電器在 J1-J5 中為可插拔式,在 J6-J7 中為固定式。
3) J1–J5 中配有單個直流電抗器; J6–J7 中配有兩個直流電抗器。
4) 開關 S801(總線端子)可用于端接 RS485 端口(端子 68 和 69)。
5) J6–J7 中無 BR。

在FC101上無 UDC- 和 UDC+:
1) IP20, 380–480 V, 30–90 kW (40–125 HP)
2) IP20, 200–240 V, 15–45 kW (20–60 HP)
3) IP20, 525–600 V, 2.2–90 kW (3–125 HP)
4) IP54, 380–480 V, 22–90 kW (30–125 HP)

A=模擬,D=數字
1) 內置制動斬波器僅在 3 相設備上可用。
2) 端子 53 也可用作數字輸入。
3) 開關 S801(總線端子)可用于端接 RS485 端口(端子 68 和 69)。
?